About
  • Projects
  • 🔒︎ Tycho
  • 🔒︎ Geodesic Space Stations
  • 🔒︎ SLI Work Sample
  • Kova Pocket Door Handle
  • Katerra Work Sample
  • Carbon
  • Blackpack
  • Exo Prosthetic Leg
  • Modulus
  • Flat-pack Series
  • Fix Condominium
  • Wrap System
  • Nomad House
  • Gravity Garden
  • Demadera
  • Digilog Clock
  • Fracture Light
  • Farm Deck
Contact
WILL ROOT
About
  • Projects
  • 🔒︎ Tycho
  • 🔒︎ Geodesic Space Stations
  • 🔒︎ SLI Work Sample
  • Kova Pocket Door Handle
  • Katerra Work Sample
  • Carbon
  • Blackpack
  • Exo Prosthetic Leg
  • Modulus
  • Flat-pack Series
  • Fix Condominium
  • Wrap System
  • Nomad House
  • Gravity Garden
  • Demadera
  • Digilog Clock
  • Fracture Light
  • Farm Deck
Contact

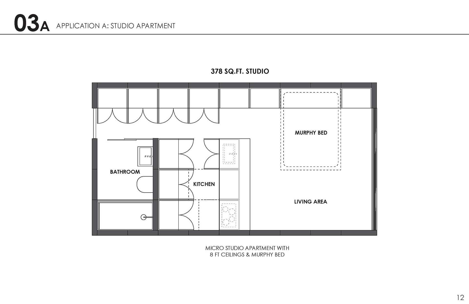
Modulus

Why can't construction be more like Legos? The Modulus system streamlines the construction process using prefabricated furniture units making architecture more functional and simple.

↑Back to Top
Powered by Adobe Portfolio